Parts Catalog Accessories Catalog How To Articles Tech Forums
Call Pelican Parts at 888-280-7799
Shopping Cart Cart | Project List | Order Status | Help



Go Back   PeachParts Mercedes-Benz Forum > Mercedes-Benz Tech Information and Support > Tech Help

Reply
 
LinkBack Thread Tools Display Modes
  #1  
Old 04-11-2010, 03:30 AM
compu_85's Avatar
Cruisin on Electric Ave.
 
Join Date: May 2008
Location: La Conner, WA
Posts: 5,250
HOW TO: Retrofitting tap to pass turn signals to your W123 / W124 / W126

Many newer cars have a nice feature where taping the turn signal lever will cause the blinkers to blink 3 times then stop. This is very handy for changing lanes on the highway. Volkswagen created a retrofit kit to add this feature to previous models. Because Mercedes and VW wire their turn signals & hazard light switch the same way adding this retrofit kit to the Mercedes is very easy.

Stuff needed:
  • Turn Signal Convenience kit for the A3 Golf, VW part # 000 998 229 , ~$70
    • Includes relay (000 953 227 A), relay socket, wiring pigtail, horrible instructions, a zip tie, and some crimp connectors
  • Screwdrivers to disassemble the center dash
  • Wire strippers
  • Soldering iron / solder
  • Forceps
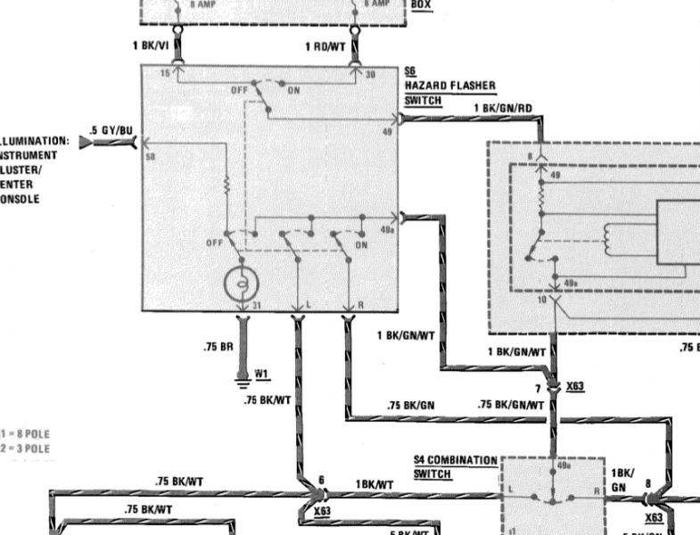
First let's look at the wiring diagrams.

For the Gen2 W126, others are probably similar:



The "Komfort Blinker" instructions:



So:
Code:
Pin# | Mercedes  Color | VW Add On Color   | Komfort Relay Pin
31   | Brown           | Brown             | 4
15   | Black / Violet  | Black / White     | 6
49A  | Blk / Green / White | Green / White | 8
49R  | Black / Green   | Green             | 5
49L  | Black / White   | White             | 2
Continued...

Attached Thumbnails
HOW TO: Retrofitting tap to pass turn signals to your W123 / W124 / W126-screen-shot-2010-04-11-2.04.49-am.jpg   HOW TO: Retrofitting tap to pass turn signals to your W123 / W124 / W126-000998229.jpg   HOW TO: Retrofitting tap to pass turn signals to your W123 / W124 / W126-2010-04-11-02.23.20.jpg  
__________________
1991 350SDL. 230,000 miles (new motor @ 150,000). Blown head gasket

Tesla Model 3. 205,000 miles. Been to 48 states!
Past: A fleet of VW TDIs.... including a V10,a Dieselgate Passat, and 2 ECOdiesels.
2014 Cadillac ELR
2013 Fiat 500E.

Last edited by compu_85; 04-11-2010 at 03:45 PM.
Reply With Quote
  #2  
Old 04-11-2010, 01:02 PM
Registered User
 
Join Date: Jun 1999
Location: Albuquerque, NM USA
Posts: 1,947
It's for sure yet another feature that once you have you can't live without.

I've retrofitted my New Beetle and kind of itch to do it to the W210 wagon I passed on to stepdaughter.

This retrofit will probably work on BMWs, too, as all German cars are wired according to Bosch specifications.

See
http://www.bentleypublishers.com/bosch/Bosch-Automotive-Handbook-7th-ed-.html

http://www.bentleypublishers.com/bosch/Bosch-Auto-Electrics-Hdbk-5th-Ed.html
__________________
Kent Christensen
Albuquerque
'07 GL320CDI, '10 CL550. '01 Porsche Boxster
Two BMW motorcycles
Reply With Quote
  #3  
Old 04-11-2010, 02:38 PM
compu_85's Avatar
Cruisin on Electric Ave.
 
Join Date: May 2008
Location: La Conner, WA
Posts: 5,250
So here's how to install the new relay:

  • Remove the ashtray, radio, and wood trim / switches / CCU from the middle dash.
  • Remove the hazard switch from the wood trim. Be careful, if you push / pry too hard you can damage the veneer.
  • Plug the hazard switch back into its connector. Pop the cover off of the back of the connector.
  • One at a time pull out the wire you need to connect to. By leaving the switch plugged in the terminals don't all fall out of the connector shell.
  • Clamp the terminal in the forceps and unsolder the connection.
  • Remove all the existing solder from the terminal.
  • Insert both the car harness and the blink mod harness wires into the connector and re-solder. There is just enough space.
  • Put the terminal back in its place.
  • Lather, rinse, repeat for all the remaining wires.
  • Close up the connector shell. There is just enough space for all the wires.
  • Now test the system. Key on and tap the turn signal lever. The add on relay should click and hold the correct blinker on for 3 blinks, then click off.
  • Secure the relay in the dash. I used the zip tie included with the kit and fastened it to one of the bowden cables running under the vents.
  • Put the dash back together and enjoy the new feature!

I chose to solder the connections because I didn't want to modify the car's harness. You could cut the wires and use the crimp connectors included with the kit (this is what the instructions say), or use some scotch locks... but I hate hacking up the factory wiring.

-Jason
Attached Thumbnails
HOW TO: Retrofitting tap to pass turn signals to your W123 / W124 / W126-screen-shot-2010-04-11-1.16.54-pm.jpg   HOW TO: Retrofitting tap to pass turn signals to your W123 / W124 / W126-screen-shot-2010-04-11-1.25.07-pm.jpg   HOW TO: Retrofitting tap to pass turn signals to your W123 / W124 / W126-screen-shot-2010-04-11-1.31.13-pm.jpg  
__________________
1991 350SDL. 230,000 miles (new motor @ 150,000). Blown head gasket

Tesla Model 3. 205,000 miles. Been to 48 states!
Past: A fleet of VW TDIs.... including a V10,a Dieselgate Passat, and 2 ECOdiesels.
2014 Cadillac ELR
2013 Fiat 500E.

Last edited by compu_85; 04-11-2010 at 09:50 PM.
Reply With Quote
  #4  
Old 04-11-2010, 04:10 PM
Registered User
 
Join Date: Oct 2005
Posts: 4,263
Quote:
Originally Posted by lkchris View Post
It's for sure yet another feature that once you have you can't live without.
Well, I disagree. It's the one feature on our Jetta that I wish I could disable. I thought it was cool for about a month, but then I just grew tired of it flashing no less than two times if you accidentally hit the switch (holding for <=1 gets you 3, 2 gets you 2).

Two other features were annoying when I got the car, but I've fixed those: the car beeped when locking and unlocking, and to open or close the windows without the key in the ignition, you had to use the key in the door cylinder.

There are settings to disable the beep and enable the remote to open or close the windows. If there's one to control the "tap to pass" feature, I haven't found it.
Reply With Quote
  #5  
Old 04-11-2010, 04:25 PM
compu_85's Avatar
Cruisin on Electric Ave.
 
Join Date: May 2008
Location: La Conner, WA
Posts: 5,250
There is, it's in the CCM. It's called Komfort Blinkers...

-J
__________________
1991 350SDL. 230,000 miles (new motor @ 150,000). Blown head gasket

Tesla Model 3. 205,000 miles. Been to 48 states!
Past: A fleet of VW TDIs.... including a V10,a Dieselgate Passat, and 2 ECOdiesels.
2014 Cadillac ELR
2013 Fiat 500E.
Reply With Quote
  #6  
Old 04-11-2010, 04:27 PM
Registered User
 
Join Date: Oct 2005
Posts: 4,263
Quote:
Originally Posted by compu_85 View Post
There is, it's in the CCM. It's called Komfort Blinkers...

-J
Thanks, Comp. I'll look for that at the next opportunity.
Reply With Quote
  #7  
Old 04-11-2010, 09:35 PM
BrianCostello's Avatar
Registered User
 
Join Date: May 2005
Location: Boston
Posts: 198
Nice work Jason. Now Peter , Corey and I will be doing this! Like I needed another project

Brian
__________________
87' 300DT (Grey w/ red leather)
87' 300TDT (silver w/ palamino tex) SOLD

2012 VW JSW TDI (on tdiclub.com all the time "btcost")
Reply With Quote
  #8  
Old 04-12-2010, 12:50 AM
pawoSD's Avatar
Dieselsüchtiger
 
Join Date: Oct 2004
Location: Grand Rapids, MI
Posts: 15,438
Is it really that hard to hold the stalk for 3 seconds?

Looks like a LOT of work to have a blinker that blinks 3x.....


Plus, what if you are one of those people that likes to only give one or two blinks when changing lanes..... I am one of those people. Keeps things unpredictable....
__________________
-diesel is not just a fuel, its a way of life-
'15 GLK250 Bluetec 118k - mine - (OC-123,800)
'17 Metris(VITO!) - 37k - wifes (OC-41k)
'09 Sprinter 3500 Winnebago View - 62k (OC - 67k)
'13 ML350 Bluetec - 95k - dad's (OC-98k)
'01 SL500 - 103k(km) - dad's (OC-110,000km)
'16 E400 4matic Sedan - 148k - Brothers (OC-155k)
Reply With Quote
  #9  
Old 04-12-2010, 07:36 AM
Hirnbeiss's Avatar
ich fahre, also bin ich
 
Join Date: Mar 2002
Location: South Florida
Posts: 1,671
Quote:
Originally Posted by pawoSD View Post
Plus, what if you are one of those people that likes to only give one or two blinks when changing lanes..... I am one of those people. Keeps things unpredictable....
Pawo, with your stable of 20+ year-old cars, I had you pegged for someone who preferred only hand signals. It is one of those things that once you have, you get used to it - kinda like central locking. My van has them and it throws me off when I get into the real car and it has "80's style" blinkers.
__________________
Prost!
Reply With Quote
  #10  
Old 04-12-2010, 07:48 AM
pawoSD's Avatar
Dieselsüchtiger
 
Join Date: Oct 2004
Location: Grand Rapids, MI
Posts: 15,438
Quote:
Originally Posted by Hirnbeiss View Post
Pawo, with your stable of 20+ year-old cars, I had you pegged for someone who preferred only hand signals. It is one of those things that once you have, you get used to it - kinda like central locking. My van has them and it throws me off when I get into the real car and it has "80's style" blinkers.
Indeed, I prefer using a trafficator.
__________________
-diesel is not just a fuel, its a way of life-
'15 GLK250 Bluetec 118k - mine - (OC-123,800)
'17 Metris(VITO!) - 37k - wifes (OC-41k)
'09 Sprinter 3500 Winnebago View - 62k (OC - 67k)
'13 ML350 Bluetec - 95k - dad's (OC-98k)
'01 SL500 - 103k(km) - dad's (OC-110,000km)
'16 E400 4matic Sedan - 148k - Brothers (OC-155k)
Reply With Quote
  #11  
Old 04-12-2010, 09:37 AM
compu_85's Avatar
Cruisin on Electric Ave.
 
Join Date: May 2008
Location: La Conner, WA
Posts: 5,250
Quote:
Originally Posted by pawoSD View Post

Looks like a LOT of work to have a blinker that blinks 3x.....
Don't knock it till you've tried it And one blink is not a sufficient indication that you are changing lanes

The install was actually super easy. Only took about 20 min start to finish. When I retrofit heated seats that install is going to take a lot more effort...

-J
__________________
1991 350SDL. 230,000 miles (new motor @ 150,000). Blown head gasket

Tesla Model 3. 205,000 miles. Been to 48 states!
Past: A fleet of VW TDIs.... including a V10,a Dieselgate Passat, and 2 ECOdiesels.
2014 Cadillac ELR
2013 Fiat 500E.
Reply With Quote
  #12  
Old 04-13-2010, 01:28 PM
Registered User
 
Join Date: Jul 2001
Posts: 902
Clever fellow. Now come up with an equivalent scheme for the wiper which will wipe it once without having to twist the wiper switch to on, then twist to off. My old Mazda had "flick wipe" where I could just hit the stalk and it would do one wipe. I miss that feature.

Rgds,
Chris W.
'95 E300D, 312K
Reply With Quote
  #13  
Old 04-13-2010, 02:01 PM
tbomachines's Avatar
ಠ_ಠ
 
Join Date: Mar 2009
Location: Philadelphia
Posts: 8,712
Quote:
Originally Posted by Chris W. View Post
Clever fellow. Now come up with an equivalent scheme for the wiper which will wipe it once without having to twist the wiper switch to on, then twist to off. My old Mazda had "flick wipe" where I could just hit the stalk and it would do one wipe. I miss that feature.

Rgds,
Chris W.
'95 E300D, 312K
YES. This drives me crazy about the MBs. Just about every new-ish car I've driven except for my MBs have had a "mist" feature where it wipes once and stops. For that matter, maybe a nice addition to these cars would be adjustable intermittent wipers.
__________________
TC
Current stable:
- 2004 Mazda RALLYWANKEL
- 2007 Saturn sky redline
- 2004 Explorer...under surgery.

Past: 135i, GTI, 300E, 300SD, 300SD, Stealth
Reply With Quote
  #14  
Old 04-13-2010, 02:27 PM
Rafi's Avatar
Registered User
 
Join Date: Jan 2003
Location: Garden State
Posts: 474
The wiper business can be done easily with a PLC (Programable Logic Controller). And we had an expert PLC programmer on this forum the name escapes me. Wire the logic input of PLC to the washer button of the stalk.
If the washer button is pressed less than lets say 2 seconds then PLC activates wiper once.
Else PLC activates the washer and wiper untill the washer button is released.

There should be PLCs that work on 12 V DC and cost less than $ 100.
Somebody wanted a side business, someone thke this idea and run with it.
__________________
2010 ML350 Bluetec
2012 Mustang Convertible
Reply With Quote
  #15  
Old 04-13-2010, 04:09 PM
JamesDean's Avatar
Electrical Engineer
 
Join Date: Apr 2005
Location: NE Ohio
Posts: 5,038
Quote:
Originally Posted by Rafi View Post
The wiper business can be done easily with a PLC (Programable Logic Controller). And we had an expert PLC programmer on this forum the name escapes me. Wire the logic input of PLC to the washer button of the stalk.
If the washer button is pressed less than lets say 2 seconds then PLC activates wiper once.
Else PLC activates the washer and wiper untill the washer button is released.

There should be PLCs that work on 12 V DC and cost less than $ 100.
Somebody wanted a side business, someone thke this idea and run with it.
This could also be accomplished with a micro-controller. The low-cost Arduino would be a good application for this. You could do many other things with it too. Its fairly cheap at $30.

PLCs and ladder logic is a pain (imo) when compared to other programming languages.

__________________
Cruise Control not working? Send me PM or email (jamesdean59@gmail.com). I might be able to help out.
Check here for compatibility, diagnostics, and availability!

(4/11/2020: Hi Everyone! I am still taking orders and replying to emails/PMs/etc, I appreciate your patience in these crazy times. Stay safe and healthy!)


82 300SD 145k
89 420SEL 210k
89 560SEL 118k
90 300SE 262k RIP 5/25/2010
90 560SEL 154k
91 300D 2.5 Turbo. 241k
93 190E 3.0 235k
93 300E 195k
Reply With Quote
Reply

Bookmarks


Posting Rules
You may not post new threads
You may not post replies
You may not post attachments
You may not edit your posts

BB code is On
Smilies are On
[IMG] code is On
HTML code is On
Trackbacks are On
Pingbacks are On
Refbacks are On




All times are GMT -4. The time now is 12:41 AM.


Powered by vBulletin® Version 3.8.7
Copyright ©2000 - 2025, vBulletin Solutions, Inc.
Search Engine Optimization by vBSEO 3.6.0
Copyright 2024 Pelican Parts, LLC - Posts may be archived for display on the Peach Parts or Pelican Parts Website -    DMCA Registered Agent Contact Page